
$935,000
2,190
SQ FT
$427
SQ/FT
184 El Encanto Way
@ St. Francis - Santa Rosa-Northeast, Santa Rosa
- 4 Bed
- 4 (3/1) Bath
- 4 Park
- 2,190 sqft
- Santa Rosa
-
-
Sun Oct 19, 1:00 pm - 3:00 pm
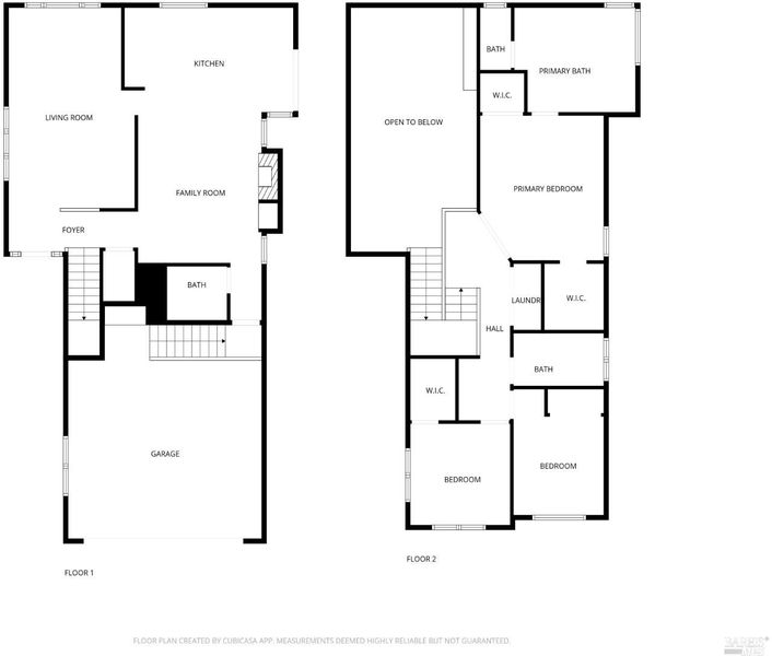
Rincon Valley home with legal ADU. Updated 3 bedroom, 2.5 bath home with attached ADU. ADU has private entrance, full-sized kitchen, separately metered, and its own fenced yard. It can also be converted into a main floor primary suite.
Updated, light-filled home with second unit on corner lot in desirable Rincon Valley neighborhood. 4 bedroom, 3.5 bath (3 in main and 1 in in-law'' unit that can be opened to create main-level primary suite.) Living room features large windows and vaulted ceilings. Kitchen offers island with gas cooktop, breakfast nook and opens to family room with fireplace and half bath. Upstairs, the primary bedroom suite provides a spacious, spa-like retreat with 2 closets (1 walk-in), separate tub and shower, dual sinks and toilet room. Two additional bedrooms (1 with walk-in closet), full bath and laundry complete the upstairs. Large two-car garage with high ceilings provides ample storage. The ADU unit is separately metered for gas and electric and features a full-sized kitchen, full bath, and a separate fenced backyard. Newly painted inside, new flooring and bath updates. Nice-sized backyard. Newer roof. New landscaping. Wonderful Rincon Valley location near Skyhawk community, trails, parks, restaurants, and shopping. Please note that some images of this property have been virtually staged. The furnishings and decor shown are for illustrative purposes only.
- Days on Market
- 0 days
- Current Status
- Active
- Original Price
- $935,000
- List Price
- $935,000
- On Market Date
- Oct 15, 2025
- Property Type
- Single Family Residence
- Area
- Santa Rosa-Northeast
- Zip Code
- 95409
- MLS ID
- 325089524
- APN
- 153-390-052-000
- Year Built
- 1998
- Stories in Building
- Unavailable
- Possession
- Close Of Escrow
- Data Source
- BAREIS
- Origin MLS System
Rincon Valley Charter School
Charter K-8 Middle
Students: 361 Distance: 0.3mi
Sequoia Elementary School
Public K-6 Elementary
Students: 400 Distance: 0.3mi
Austin Creek Elementary School
Public K-6 Elementary
Students: 387 Distance: 0.6mi
Whited Elementary Charter School
Charter K-6 Elementary
Students: 406 Distance: 0.7mi
Heidi Hall's New Song Isp
Private K-12
Students: NA Distance: 0.8mi
Binkley Elementary Charter School
Charter K-6 Elementary
Students: 360 Distance: 0.9mi
- Bed
- 4
- Bath
- 4 (3/1)
- Double Sinks, Shower Stall(s), Soaking Tub, Window
- Parking
- 4
- Attached, Garage Door Opener, Interior Access
- SQ FT
- 2,190
- SQ FT Source
- Assessor Auto-Fill
- Lot SQ FT
- 6,504.0
- Lot Acres
- 0.1493 Acres
- Kitchen
- Breakfast Area, Island, Kitchen/Family Combo
- Cooling
- Ceiling Fan(s)
- Dining Room
- Dining/Living Combo
- Living Room
- Cathedral/Vaulted
- Flooring
- Carpet, Simulated Wood, See Remarks
- Fire Place
- Family Room, Gas Log
- Heating
- Central
- Laundry
- Cabinets, Electric, Gas Hook-Up, Hookups Only, Laundry Closet, Upper Floor
- Upper Level
- Bedroom(s), Full Bath(s), Primary Bedroom
- Main Level
- Dining Room, Kitchen, Living Room, Partial Bath(s), Street Entrance
- Possession
- Close Of Escrow
- Fee
- $0
MLS and other Information regarding properties for sale as shown in Theo have been obtained from various sources such as sellers, public records, agents and other third parties. This information may relate to the condition of the property, permitted or unpermitted uses, zoning, square footage, lot size/acreage or other matters affecting value or desirability. Unless otherwise indicated in writing, neither brokers, agents nor Theo have verified, or will verify, such information. If any such information is important to buyer in determining whether to buy, the price to pay or intended use of the property, buyer is urged to conduct their own investigation with qualified professionals, satisfy themselves with respect to that information, and to rely solely on the results of that investigation.
School data provided by GreatSchools. School service boundaries are intended to be used as reference only. To verify enrollment eligibility for a property, contact the school directly.